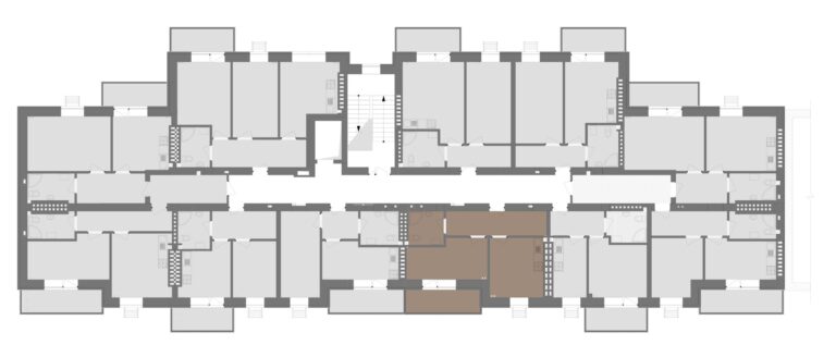
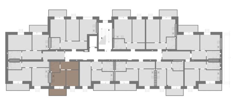
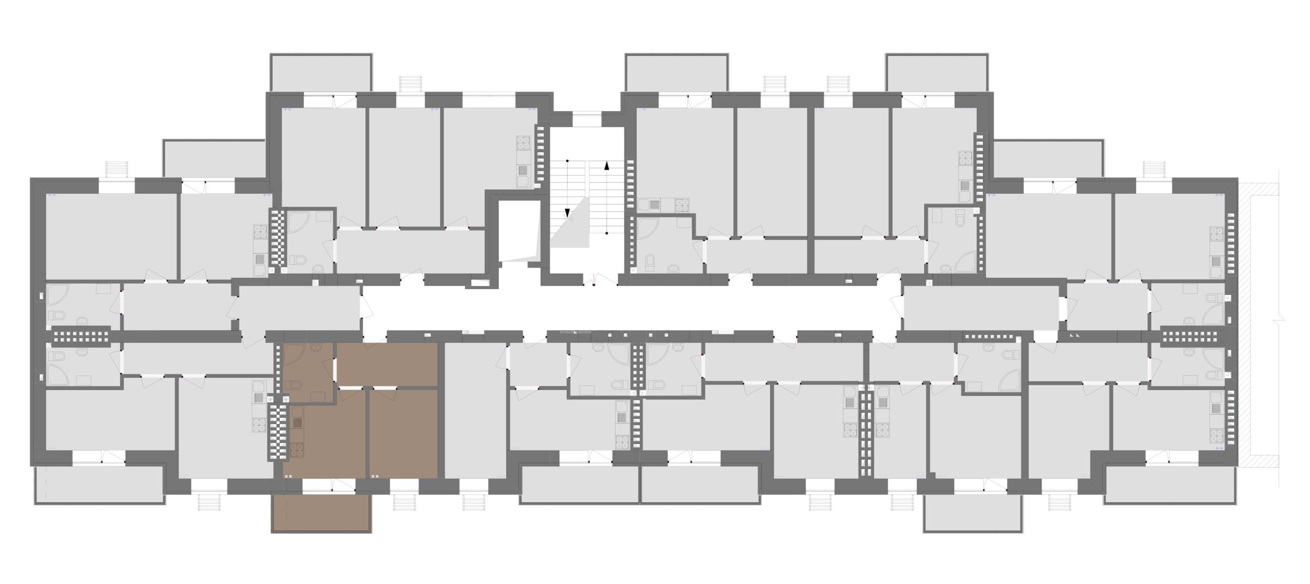
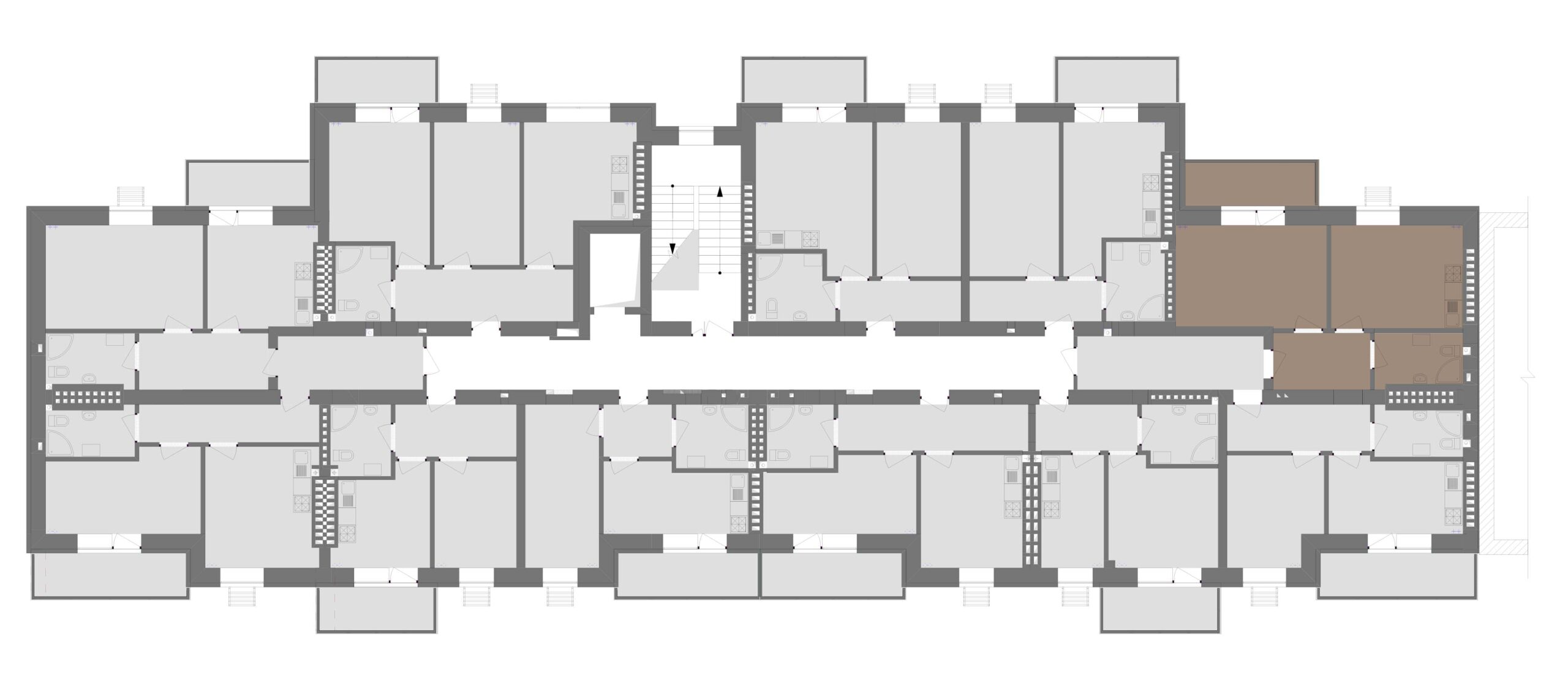
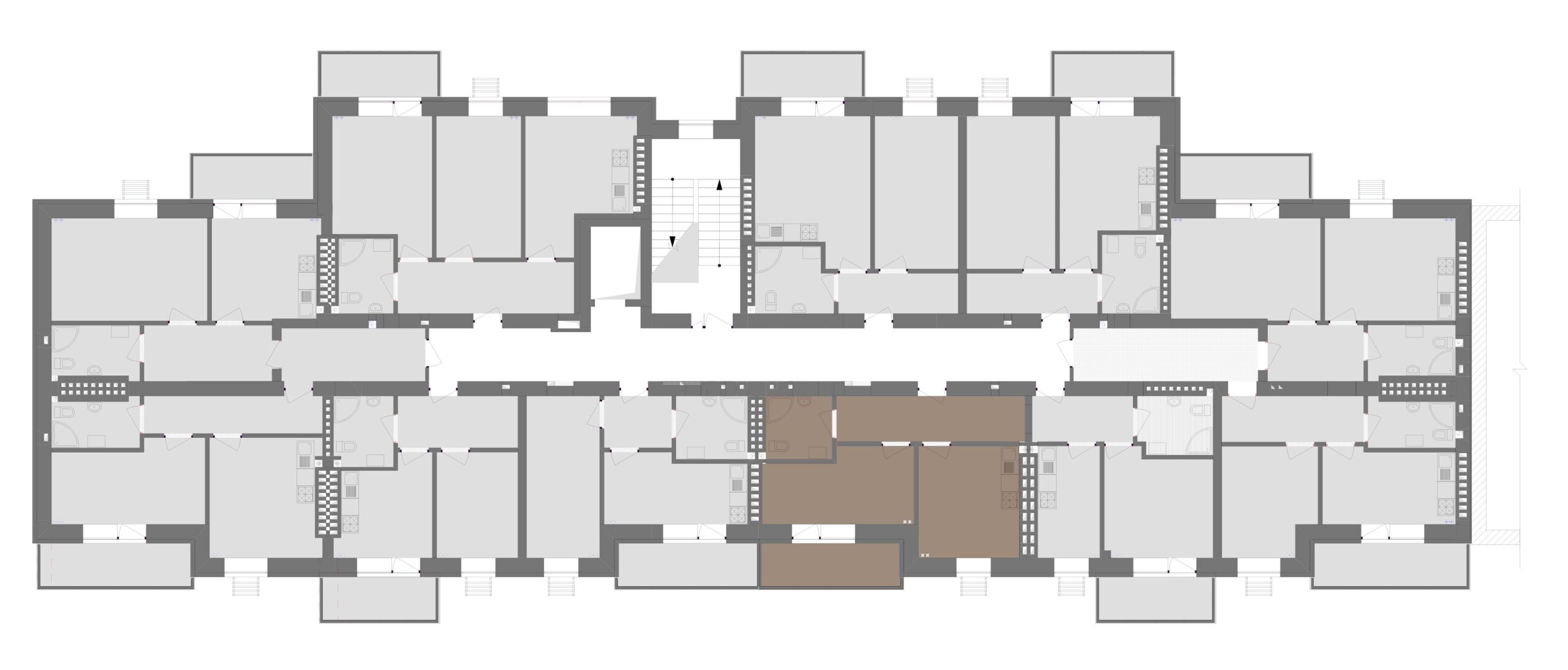
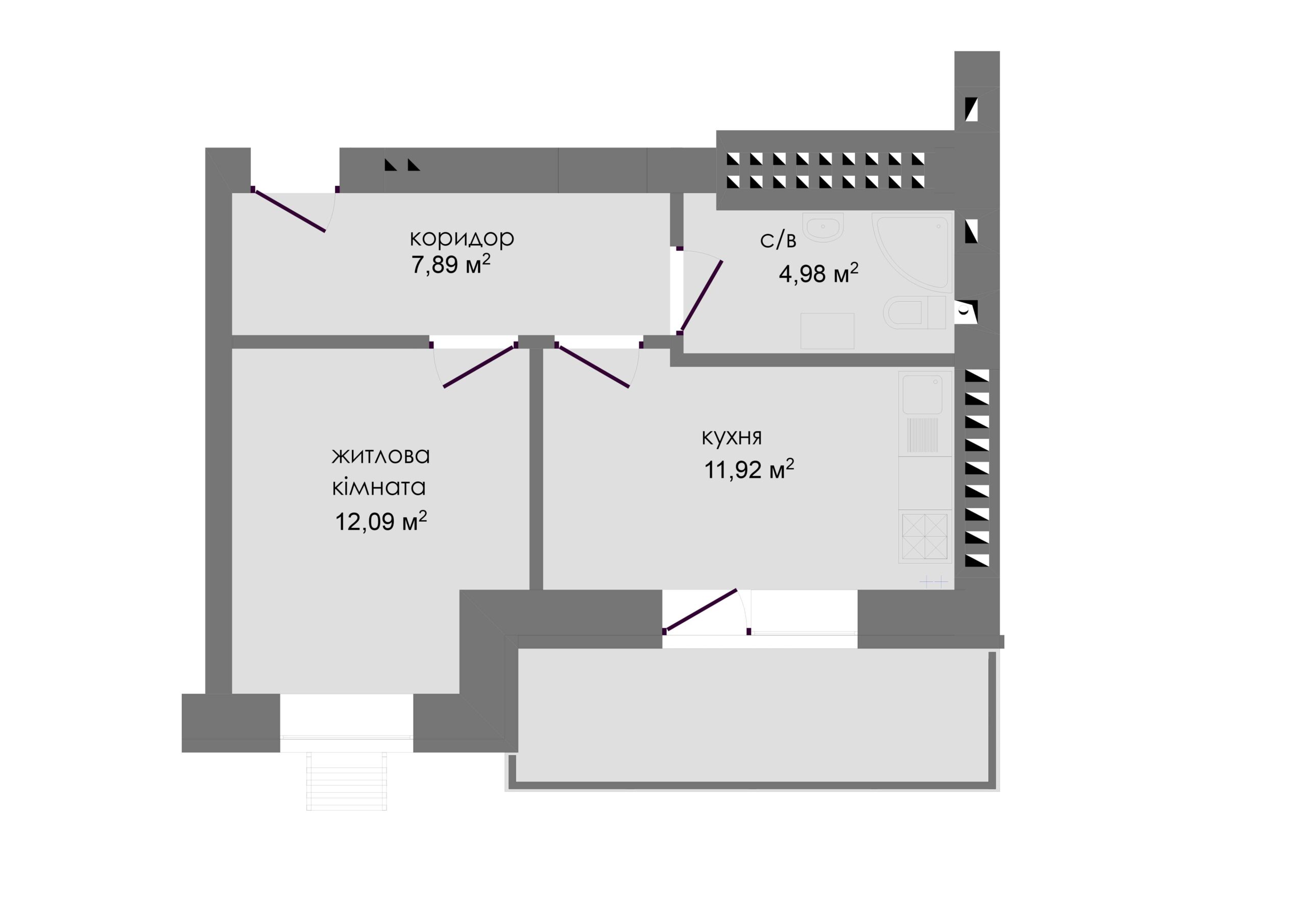
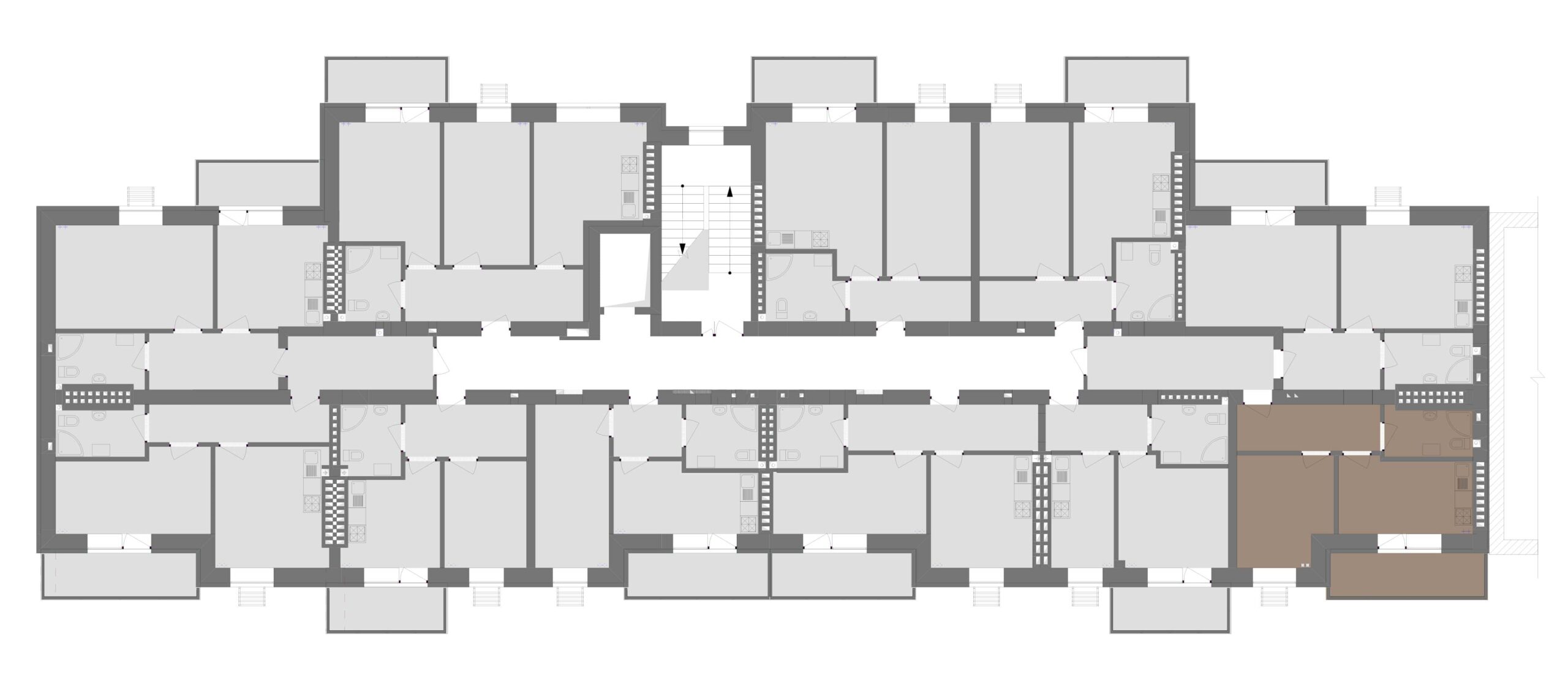
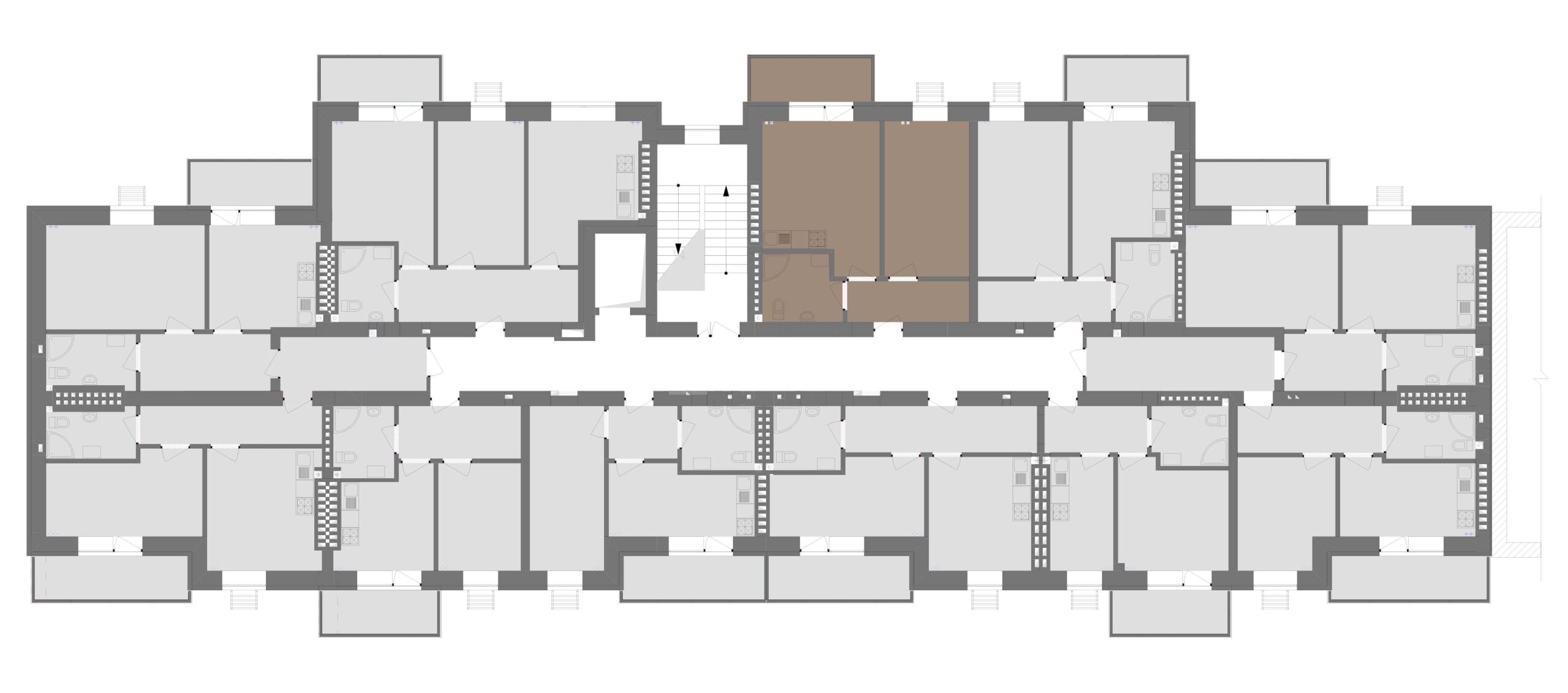
1 кімнатна квартира в ЖК “Європейський” – це ідеальний вибір для сучасного та комфортного проживання. Квартира пропонує функціональне планування, стильний дизайн та використання якісних матеріалів. Вона забезпечить вас простором та затишком, а також має всі необхідні зручності для вашого комфорту. Насолоджуйтесь прекрасними видами з вікна та затишком своєї оселі. Оберіть 1 кімнатну квартиру в ЖК “Європейський”, що знаходиться за адресою вул. Леоніда Каденюка (Гагаріна), буд. 11, Павлоград, Дніпропетровська область та насолоджуйтесь яскравими моментами вашого життя.
| № Поверху | 2 | 3 | 4 | 5 | 6 | 7 | 8 | 9 |
| № Квартири | 4 | 15 | 26 | 37 | 48 | 59 | 70 | 80 |
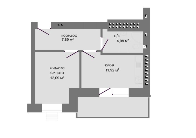
| Площа квартири | 51,05 м2 | 51,97 м2 | ||||||
| № Поверху | 2 | 3 | 4 | 5 | 6 | 7 | 8 | 9 |
| № Квартири | 5 | 16 | 27 | 38 | 49 | 60 | 71 | 81 |
| Площа квартири | 48,17 м2 | 49,08 м2 | ||||||
| № Поверху | 2 | 3 | 4 | 5 | 6 | 7 | 8 | 9 |
| № Квартири | 6 | 17 | 28 | 39 | 50 | 61 | 72 | 82 |
| Площа квартири | 56,92 м2 | 58,20 м2 | ||||||
| № Поверху | 2 | 3 | 4 | 5 | 6 | 7 | 8 | 9 |
| № Квартири | 7 | 18 | 29 | 40 | 51 | 62 | 73 | 83 |
| Площа квартири | 62,85 м2 | 47,75 м2 | 48,93 м2 | |||||
| № Поверху | 2 | 3 | 4 | 5 | 6 | 7 | 8 | 9 |
| № Квартири | 8 | 19 | 30 | 41 | 52 | 63 | 74 | 84 |
| Площа квартири | 52,15 м2 | 37,14 м2 | 37,94 м2 | |||||
| № Поверху | 2 | 3 | 4 | 5 | 6 | 7 | 8 | 9 |
| № Квартири | 9 | 20 | 31 | 42 | 53 | 64 | 75 | 85 |
| Площа квартири | 69,43 м2 | 46,81 м2 | 48,12 м2 | |||||
| № Поверху | 2 | 3 | 4 | 5 | 6 | 7 | 8 | 9 |
| № Квартири | 10 | 21 | 32 | 43 | 54 | 65 | 76 | 86 |
| Площа квартири | 58,86 м2 | 40,12 м2 | 41,24 м2 | |||||
| № Поверху | 2 | 3 | 4 | 5 | 6 | 7 | 8 | 9 |
| № Квартири | 11 | 22 | 33 | 44 | 55 | 66 | 76 | 87 |
| Площа квартири | 52,18 м2 | 37,82 м2 | 38,66 м2 | |||||
| № Поверху | 2 | 3 | 4 | 5 | 6 | 7 |
| № Квартири | 12 | 23 | 34 | 45 | 56 | 67 |
| Площа квартири | 77,05 м2 | 52,46 м2 | ||||
| № Поверху | 2 | 3 | 4 | 5 | 6 | 7 |
| № Квартири | 13 | 24 | 35 | 46 | 57 | 68 |
| Площа квартири | 55,05 м2 | |||||






























